Mieszkanie na sprzedaż Warszawa, Mokotów, Stefana Bryły

3 pokoje
50.70 m²
15 581,85 zł/m2
5 piętro
HSH-MS-13655

790 000 zł

Mieszkanie na sprzedaż
Nowa oferta

Szczegóły oferty

Symbol oferty HSH-MS-13655
Powierzchnia 50,70 m²
Powierzchnia użytkowa [m2] 50,70 m²
Liczba pokoi 3
Rodzaj budynku blok
Piętro 5
Liczba pięter w budynku 19
Stan lokalu do odświeżenia
Winda tak
Magda Ziołowska

Magda Ziołowska

doradca klienta

Napisz wiadomość 14 Ofert

Opis nieruchomości

  • mieszkanie  trzypokojowe mieszkanie usytuowane na 5 piętrze 10-piętrowego budynku mieszkalnego z 1974 r. z windą przy ul. Stefana Bryły w Warszawie,
  • dzięki doskonałej lokalizacji (Górny Mokotów) oraz funkcjonalnemu układowi pomieszczeń świetnie sprawdzi się zarówno jako mieszkanie dla rodziny, jak i inwestycja pod wynajem.
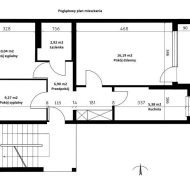
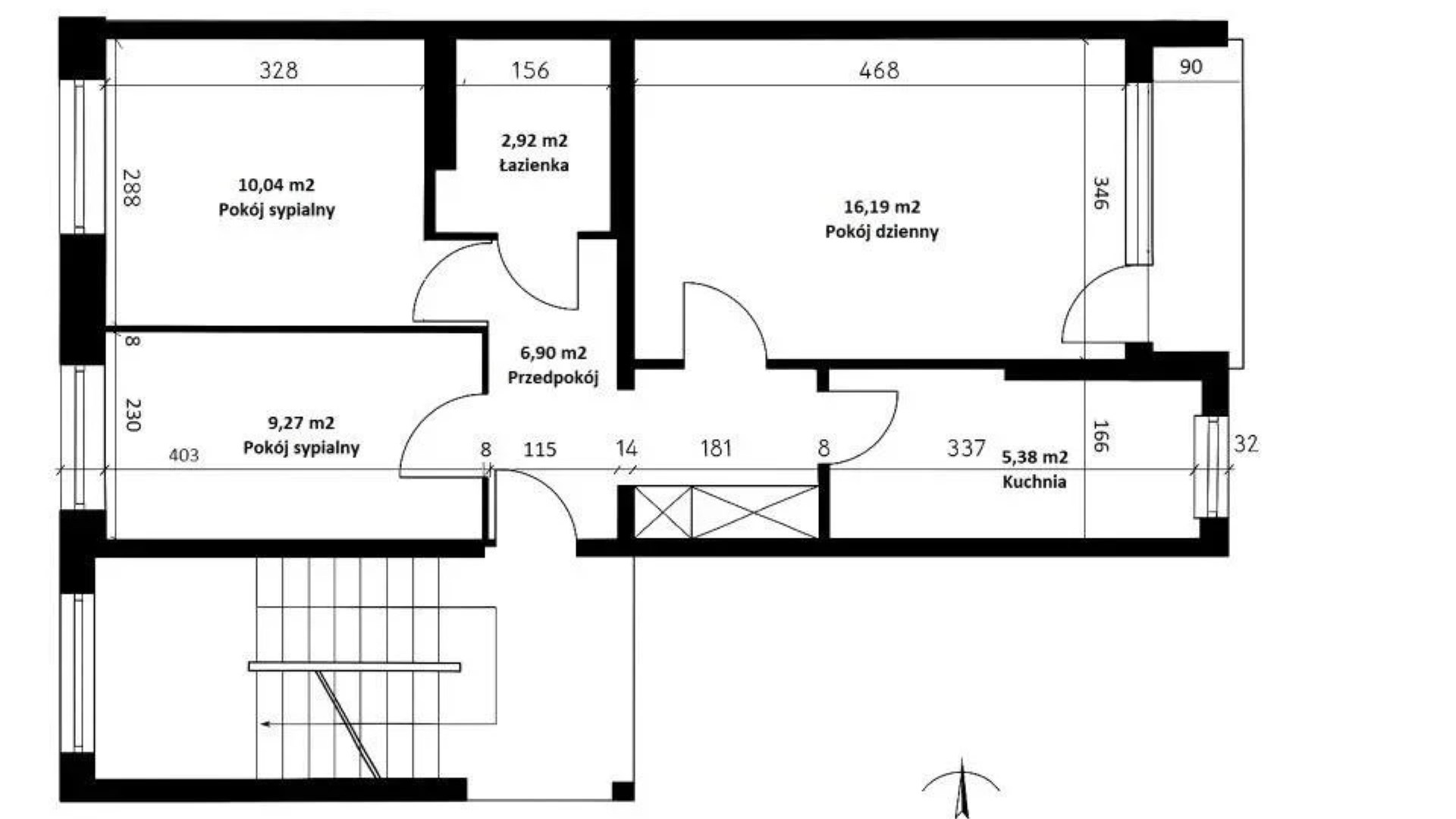
  • Lokal o powierzchni 50,70 m² składa się z: przedpokoju (6,90 m²), oddzielnej kuchni z oknem (5,38 m²), łazienki z wanną i toaletą (2,92 m²), dwóch ustawnych sypialni (10,04 i 9,27 m²) oraz przestronnego salonu (16,19 m²), z którego wyjście prowadzi na sporej wielkości balkon typu loggia.
  • Układ pomieszczeń pozwala na połączenie salonu z kuchnią.

Mieszkanie jest środkowe, o ekspozycji dwustronnej (wschód-zachód), słoneczne i ciepłe, co pozwala na obniżenie kosztów ogrzewania. Do mieszkania przynależy piwnica. D
  • Lokal jest w dobrym stanie technicznym, ale wymaga odświeżenia. W 2016 r. przeprowadzono w nim remont, podczas którego we wszystkich pomieszczeniach wymieniono grzejniki oraz instalację elektryczną na miedzianą. W pokojach i przedpokoju na ścianach i sufitach położono gładzie, zachowano jedynie oryginalną mozaikę parkietową, która wymaga częściowej naprawy i cyklinowania. W łazience na ścianach i podłodze położono glazurę i terakotę, w kuchni gres szkliwiony. W kuchni wymieniono również poziomy wodne i kanalizacyjne. W przedpokoju znajduje się nowa, pojemna szafa wnękowa z lustrem.

Blok jest zadbany. W ciągu ostatnich kilku lat wymieniono w nim windę oraz piony wodno-kanalizacyjne. Zbudowano również wiatrołap w celu poprawy komfortu termicznego w mieszkaniach położonych na parterze. Budynek posiada 10 pięter, ale na każdym piętrze znajdują się tylko 3 lokale mieszkalne.

Dodatkowe informacje:
- czynsz administracyjny: ok. 950,00 zł (zaliczki na 2 osoby)
 - okna: PCV
- stan prawny: odrębna własność z księgą wieczystą (można posiłkować się kredytem),
- dostępność: od zaraz.

 

Kalkulatory

Kalkulator kosztów

Podatek od czynności cywilno-prawnych

Taksa notarialna
(opłata notarialna)

Wniosek o wpis do KW

VAT od prowizji
agencji nieruchomości

VAT od taksy notarialnej
(opłaty notarialnej)

Prowizja agencji nieruchomości

Wypisy aktu notarialnego

Razem

Uwaga: mogą wystąpić dodatkowe opłaty za założenie księgi wieczystej oraz ustanowienie hipoteki.

PLN
PLN
PLN
PLN
PLN
PLN
%
PLN

Podobne oferty

Mieszkanie na sprzedaż

Warszawa, Mokotów

2 pokoje 42 m2 18 571,43 zł/m2

Mieszkanie na sprzedaż

Warszawa, Mokotów

1 pokoj 36 m2 16 699,19 zł/m2

Mieszkanie na sprzedaż

Warszawa, Mokotów

3 pokoje 47 m2 16 808,51 zł/m2

Mieszkanie na sprzedaż

Warszawa, Mokotów

2 pokoje 42 m2 17 857,14 zł/m2

doradca klienta

Proszę wprowadzić poprawne imię i nazwisko
Proszę wprowadzić poprawny numer telefonu
Proszę wprowadzić poprawny adres e-mail
Proszę zaznaczyć wymagane zgody
Rozwiąż równanie:
25 9
Niepoprawny wynik