Mieszkanie na sprzedaż Warszawa, Praga-Południe, Kawcza

2 pokoje
40.72 m²
16 920,43 zł/m2
HSH-MS-13443
Oblicz ratę kredytu

689 000 zł

Mieszkanie na sprzedaż
Nowa oferta

Szczegóły oferty

Symbol oferty HSH-MS-13443
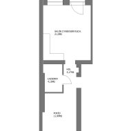
Powierzchnia 40,72 m²
Powierzchnia użytkowa [m2] 40,72 m²
Liczba pokoi 2
Pomieszczenia
Magda Ziołowska

Magda Ziołowska

doradca klienta

Napisz wiadomość 16 Ofert

Opis nieruchomości

  • mieszkanie na pierwszym piętrze w przedwojennej kamienicy.
  • Posiada duże okna, balkon i wysoką jakość wykończenia.
  • Wnętrza są jasne i przestronne, z nowoczesnym stylem.
  • Wysokość 280 cm.
  • Kuchnia jest w pełni wyposażona, a łazienka z wanną, ogrzewanie i woda - gazowe, rachunki za media i czynsz niskie (czynsz 550 zł).
  • Mieszkanie do lekkiego odświeżenia  - ale już gotowe do zamieszkania i dostępne do uzgodnienia.

Lokal znajduje się w świetnej lokalizacji. W pobliżu są sklepy, bazarek przy Placu Szembeka. Do centrum miasta dojdziesz w 15 minut. Dostępne są przystanki autobusowe, tramwajowe. Okolica jest cicha i dobrze skomunikowana.
Zachęcam do obejrzenia mieszkania na żywo. Skontaktuj się, aby umówić wizytę i poznać szczegóły oferty.

Kalkulatory

Kalkulator kredytowy

Wysokość raty

PLN
%

Kalkulator kosztów

Podatek od czynności cywilno-prawnych

Taksa notarialna
(opłata notarialna)

Wniosek o wpis do KW

VAT od prowizji
agencji nieruchomości

VAT od taksy notarialnej
(opłaty notarialnej)

Prowizja agencji nieruchomości

Wypisy aktu notarialnego

Razem

Uwaga: mogą wystąpić dodatkowe opłaty za założenie księgi wieczystej oraz ustanowienie hipoteki.

PLN
PLN
PLN
PLN
PLN
PLN
%
PLN

doradca klienta

Proszę wprowadzić poprawne imię i nazwisko
Proszę wprowadzić poprawny numer telefonu
Proszę wprowadzić poprawny adres e-mail
Proszę zaznaczyć wymagane zgody
Rozwiąż równanie:
28 7
Niepoprawny wynik