Mieszkanie na sprzedaż Warszawa, Wilanów, Sarmacka

5 pokoi
116.00 m²
15 965,52 zł/m2
HSH-MS-13413
Oblicz ratę kredytu

1 852 000 zł

Mieszkanie na sprzedaż

Szczegóły oferty

Symbol oferty HSH-MS-13413
Powierzchnia 116,00 m²
Liczba pokoi 5
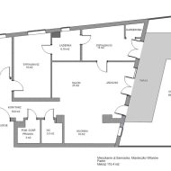
Pomieszczenia
Magda Ziołowska

Magda Ziołowska

doradca klienta

Napisz wiadomość 15 Ofert

Opis nieruchomości

  • Na sprzedaż przestronne i funkcjonalne mieszkanie położone na parterze budynku przy ul. Sarmackiej 12 – w samym sercu Miasteczka Wilanów.
  • Mieszkanie ma idealny układ – duży salon z otwartą kuchnią i jadalnią, 3 sypialnie, gabinet (lub dodatkowy pokój), łazienkę, osobne WC, garderobę oraz pralnię
  • Mieszkanie narożne (nie od strony ulicy).
  • Duże okna zapewniające piękne nasłonecznienie przez cały dzień.
  • Wydzielona strefa dzienna i prywatna.
  • Cicha lokalizacja – idealna do pracy i wypoczynku.
 
  • Duży ogród ok. 70 m²! Otoczony osiedlową zielenią, doskonały na spacery i relaks z rodziną lub pupilami. Można go zaaranżować jako strefę relaksu, mini ogródek warzywny, plac zabaw dla dzieci albo siłownię na świeżym powietrzu.
 
  • Całodobowa ochrona osiedla – każde wejście monitorowane i zabezpieczone przed dostępem osób postronnych, co zapewnia poczucie pełnego bezpieczeństwa.
  • Jedno miejsce garażowe na platformie  płatne dodatkowo 50 000
  • Do mieszkania nie przynależy komórka lokatorska. płatna dodatkowo 30 000

Kalkulatory

Kalkulator kredytowy

Wysokość raty

PLN
%

Kalkulator kosztów

Podatek od czynności cywilno-prawnych

Taksa notarialna
(opłata notarialna)

Wniosek o wpis do KW

VAT od prowizji
agencji nieruchomości

VAT od taksy notarialnej
(opłaty notarialnej)

Prowizja agencji nieruchomości

Wypisy aktu notarialnego

Razem

Uwaga: mogą wystąpić dodatkowe opłaty za założenie księgi wieczystej oraz ustanowienie hipoteki.

PLN
PLN
PLN
PLN
PLN
PLN
%
PLN

Podobne oferty

Mieszkanie na sprzedaż

Warszawa, Wilanów

3 pokoje 74 m2 20 819,89 zł/m2
Nowa oferta

Mieszkanie na sprzedaż

Warszawa, Wilanów

3 pokoje 69 m2 21 739,13 zł/m2
Nowa oferta
Nowa oferta

Mieszkanie na sprzedaż

Warszawa, Wilanów

3 pokoje 67 m2 19 552,24 zł/m2
Nowa oferta

doradca klienta

Proszę wprowadzić poprawne imię i nazwisko
Proszę wprowadzić poprawny numer telefonu
Proszę wprowadzić poprawny adres e-mail
Proszę zaznaczyć wymagane zgody
Rozwiąż równanie:
17 1
Niepoprawny wynik