Mieszkanie na sprzedaż Warszawa, Wilanów, Miasteczko Wilanów, Aleksandra Gieysztora

3 pokoje
64.00 m²
19 000,00 zł/m2
3 piętro
HSH-MS-13585

1 216 000 zł

Mieszkanie na sprzedaż
Nowa oferta

Szczegóły oferty

Symbol oferty HSH-MS-13585
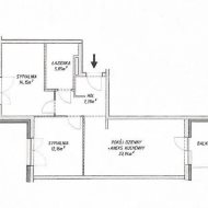
Powierzchnia 64,00 m²
Liczba pokoi 3
Piętro 3
Liczba pięter w budynku 3
Garaż garaż pod budynkiem
Stan lokalu do wprowadzenia
Mies. czynsz admin. 1 000 PLN
Balkon jest
Winda tak

Opis nieruchomości

64 m2 | Ekspozycja na dwie strony świata | balkon | Dla rodziny | jedno miejsce postojowe w garażu podziemnym | Komórka lokatorska

Nowoczesny apartament o powierzchni 64 m2 znajdujący się na ostatniej kondygnacji (3cie piętro) apartamentowca w Miasteczku Wilanów. Ogromną wartością dodaną jest przynależąca do apartamentu komórka lokatorska oraz niezależne miejsce parkingowe.

Apartament jest usytuowany przy ulicy Gieysztora, w centrum Miasteczka Wilanów. najbliższym otoczeniu znajdują się: sklepy, restauracje, kawiarnie, kompleks handlowo-usługowy Royal Wilanów, tereny rekreacyjne, ścieżki rowerowe, Pałac w Wilanowie, przedszkola oraz najlepsze szkoły międzynarodowe: International European School, Academy International Wilanów, Willy-Brandt School, The British Primary School, International American School.

STANDARD WYKOŃCZENIA

Mieszkanie dwustronne: widny salon z aneksem kuchennym, balkon z widokiem na zielone patio od strony południowej, a obie sypialnie od północnej. Funkcjonalny rozkład pomieszczeń. Pokoje są bardzo ustawne, o zbliżonym metrażu. Sypialnia master z szafą na wymiar w zabudowie. Druga może posłużyć jako pokój dla dzieci lub gabinet. Apartament jest bardzo zadbany i wykończony naturalnymi, bardzo dobrymi jakościowo materiałami.

 
Jasna i duża łazienka z zabudową pod wymiar i wygodnym prysznicem. 

Do apartamentu przynależy 1 miejsce parkingowe w garażu podziemnym w cenie 40 000 zł oraz komórka lokatorska (4,7 m2) w cenie 25 000 PLN.

Kalkulatory

Kalkulator kosztów

Podatek od czynności cywilno-prawnych

Taksa notarialna
(opłata notarialna)

Wniosek o wpis do KW

VAT od prowizji
agencji nieruchomości

VAT od taksy notarialnej
(opłaty notarialnej)

Prowizja agencji nieruchomości

Wypisy aktu notarialnego

Razem

Uwaga: mogą wystąpić dodatkowe opłaty za założenie księgi wieczystej oraz ustanowienie hipoteki.

PLN
PLN
PLN
PLN
PLN
PLN
%
PLN

Podobne oferty

Mieszkanie na sprzedaż

Warszawa, Wilanów

2 pokoje 45 m2 23 034,29 zł/m2

Mieszkanie na sprzedaż

Warszawa, Wilanów

3 pokoje 74 m2 20 819,89 zł/m2

Mieszkanie na sprzedaż

Warszawa, Wilanów

3 pokoje 69 m2 21 739,13 zł/m2

Mieszkanie na sprzedaż

Warszawa, Wilanów

2 pokoje 64 m2 20 000,00 zł/m2

Doradca

Proszę wprowadzić poprawne imię i nazwisko
Proszę wprowadzić poprawny numer telefonu
Proszę wprowadzić poprawny adres e-mail
Proszę zaznaczyć wymagane zgody
Rozwiąż równanie:
29 7
Niepoprawny wynik