Mieszkanie na sprzedaż Warszawa, Śródmieście, Centrum, Grzybowska

3 pokoje
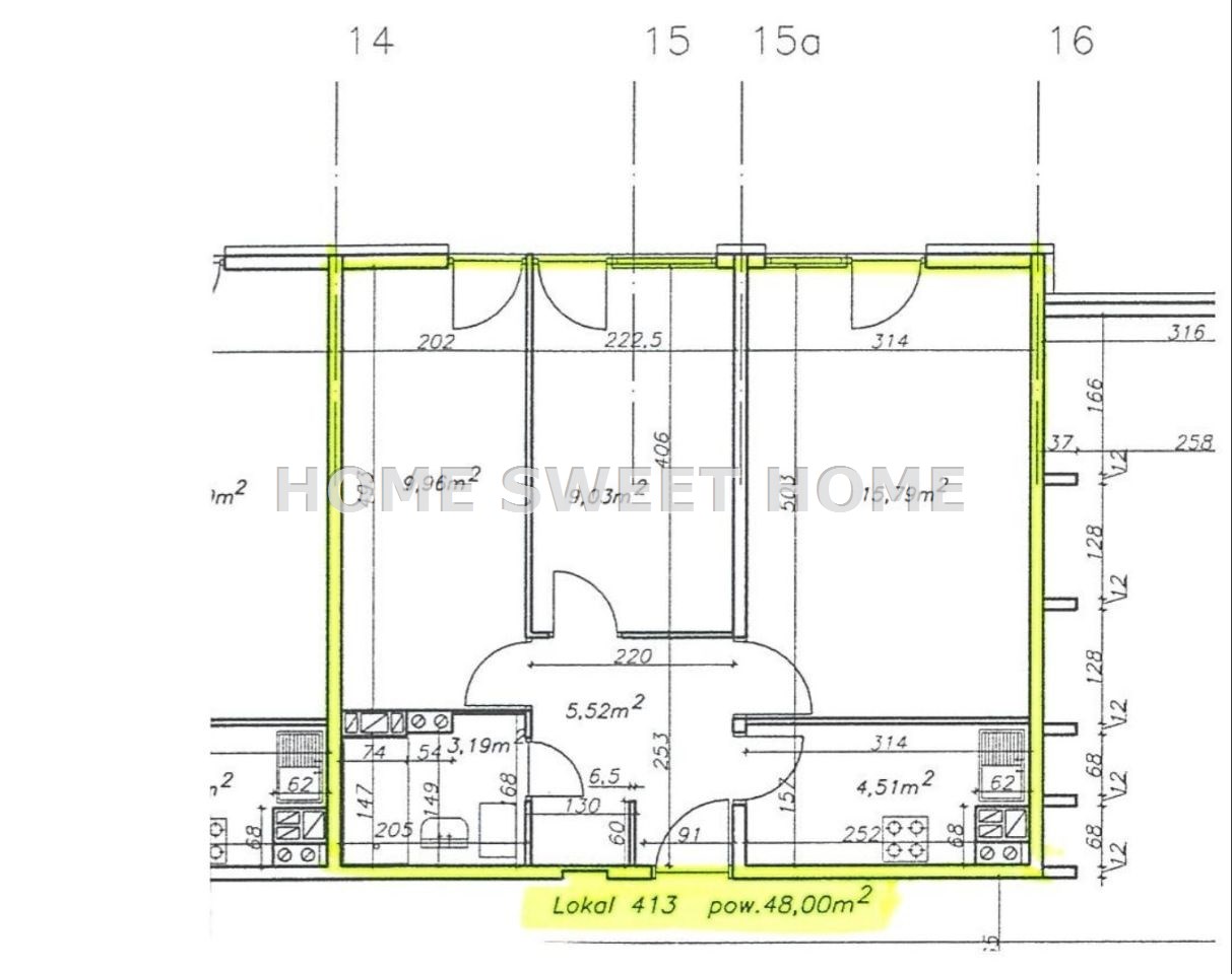
48.00 m²
16 645,83 zł/m2
4 piętro
HSH-MS-13513
Oblicz ratę kredytu

799 000 zł

Mieszkanie na sprzedaż
Nowa oferta

Szczegóły oferty

Symbol oferty HSH-MS-13513
Powierzchnia 48,00 m²
Liczba pokoi 3
Piętro 4
Liczba pięter w budynku 15
Stan lokalu do generalnego remontu
Mies. czynsz admin. 850 PLN
Winda tak
Pomieszczenia
Marta Jankowska

Marta Jankowska

doradca klienta

Napisz wiadomość 27 Ofert

Opis nieruchomości

Jeśli chcesz być w Cetrum wydarzeń, to jest mieszkanie dla Ciebie!
Grzybowska, na pograniczu Śródmieścia i Woli

Pełna infrastruktura miejska, idealny transport: autobusy, tramwaje, Metro (stacja Rondo ONZ). 
Restauracje i butiki | Dworzec Centralny | Hala Mirowska | Fabryka Norblina i Browary Warszawskie | Ogród Saski, ścieżki rowerowe i tereny zielone

Budynek na monitorowanym terenie ze strzeżonym parkingiem za szlabanem i miejscami dla gości | Reprezentacyjna recepcja czynna 24/7 | Wyremontowany hol i zadbane windy | Rowerownia | Zadbany budynek z lat 70.

Powierzchnia całkowita mieszkania: 48,0 m² | Piętro: 4 / 15 | Liczba pokoi: 3 | Oddzielna kuchnia (z możliwością otwarcia na salon) | Balkony francuskie | Ekspozycja okien: zachodnia (jasne, słoneczne wnętrza) | Spółdzielczo-własnościowe |

Mieszkanie z dużymi możliwościami aranżacji. Mieszkanie zostało przygotowane do remontu. Zostały zamówione nowe okna. Podłoga drewniana z lat 70-tych przygotowana do cyklinowania. Do wymiany drzwi wejściowe oraz wewnętrzne. Do zrobienia elektryka, łazienka oraz kuchnia.

Rozkład pomieszczeń:

  • Salon: ok. 15,80 m²
  • Kuchnia: 4,50 m²
  • Sypialnia 1: 10,00 m²
  • Sypialnia 2: 9,00 m²
  • Przedpokój: 5,50 m²
  • Łazienka: 3,20 m²

Kalkulatory

Kalkulator kredytowy

Wysokość raty

PLN
%

Kalkulator kosztów

Podatek od czynności cywilno-prawnych

Taksa notarialna
(opłata notarialna)

Wniosek o wpis do KW

VAT od prowizji
agencji nieruchomości

VAT od taksy notarialnej
(opłaty notarialnej)

Prowizja agencji nieruchomości

Wypisy aktu notarialnego

Razem

Uwaga: mogą wystąpić dodatkowe opłaty za założenie księgi wieczystej oraz ustanowienie hipoteki.

PLN
PLN
PLN
PLN
PLN
PLN
%
PLN

Podobne oferty

Mieszkanie na sprzedaż

Warszawa, Śródmieście

3 pokoje 58 m2 17 224,14 zł/m2

Mieszkanie na sprzedaż

Warszawa, Śródmieście

27 m2 24 074,07 zł/m2
Nowa oferta

Mieszkanie na sprzedaż

Warszawa, Śródmieście

2 pokoje 40 m2 24 900,00 zł/m2
Nowa oferta
Nowa oferta

Mieszkanie na sprzedaż

Warszawa, Śródmieście

2 pokoje 30 m2 27 503,34 zł/m2
Nowa oferta

doradca klienta

Proszę wprowadzić poprawne imię i nazwisko
Proszę wprowadzić poprawny numer telefonu
Proszę wprowadzić poprawny adres e-mail
Proszę zaznaczyć wymagane zgody
Rozwiąż równanie:
18 1
Niepoprawny wynik